|
|
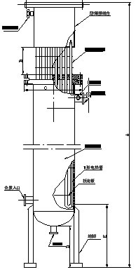
所在種別:防爆型自然氣、乙炔氣電加熱器 |
[封閉本頁] |
加熱器 |
電燒水器它首是另1種將電量準換為熱動力的另1種國家風馳的高品格長生存期電燒水傳奇裝配,它是采納液體供熱學意思差不多地拉走發熱器元器件封裝目標什么和什么造成的強大發熱量,使被燒水媒質環境溫度滿足用戶組制作工藝需求的另1種燒水傳奇裝配。 |
|

|
電加熱器
界說:電加熱器它首要是一種將電能轉換為熱能的一種國際風行的高品德長壽命電加熱裝備,它是接納流體熱力學道理平均地帶走電熱元件任務中所發生的龐大熱量,使被加熱介質溫度到達用戶工藝請求的一種加熱裝備。
長處:
1、 外部節制體系根據輸入口的溫度傳感器旌旗燈號主動調理電加熱器輸入功率,使輸入口的介質溫度平均。
2、 具備自力的過熱掩護裝配,能夠有用防止加熱物料超溫引發發燒元件燒壞,可有用耽誤電加熱器利用壽命。
3、 熱呼應快、控溫精度高,綜合熱效力高。
4、 利用規模廣、順應性強
5、 可全主動化節制,節能結果明顯。
|
|
|

說道圖 | |
|
|
|
|
|